Save
Ask
Tour
Hide
$499,900
New Listing
116 Chapel Crossing Lane 11Weaverville, NC 28787
For Sale|Single Family Residence|Active
2
Beds
3
Total Baths
2
Full Baths
1
Partial Bath
1,970
SqFt
$254
/SqFt
2026
Built
Subdivision:
Chapel Crossing
County:
Buncombe
Call Now: 704-912-0726
Is this the listing for you? We can help make it yours.
704-912-0726

Save
Ask
Tour
Hide
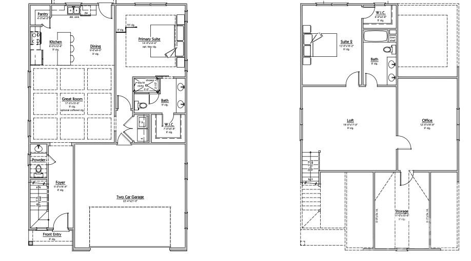
This floor plan, the Brooke, features and open concept living room, kitchen and dining area with 2 bedrooms, 3 bathrooms, office and large loft. Primary bedroom is located on the main level with an elevated en suite. Enjoy large loft, office and secondary bedroom on the upper level. This home features soft close cabinetry, craftsman trim, 9 foot ceilings, ceramic tiled floors and private back yard. Builder is now offering $20,000 towards picking selctions and personalizing the home to your needs. For more information, visit our model home at 183 Cherry Springs Lane Asheville, NC or contact the listing agent.
Save
Ask
Tour
Hide
Listing Snapshot
Price
$499,900
Days On Site
0 Days
Bedrooms
2
Inside Area (SqFt)
1,970 sqft
Total Baths
3
Full Baths
2
Partial Baths
1
Lot Size
0.1 Acres
Year Built
2026
MLS® Number
4332654
Status
Active
Property Tax
N/A
HOA/Condo/Coop Fees
$132 monthly
Sq Ft Source
N/A
Friends & Family
Recent Activity
| 3 hours ago | Listing first seen on site | |
| 3 hours ago | Listing updated with changes from the MLS® |
General Features
Attached Garage
Yes
Foundation
Slab
Garage
Yes
Garage Spaces
2
Levels
One
Property Condition
New Construction
Property Sub Type
Single Family Residence
Security
Carbon Monoxide Detector(s)Smoke Detector(s)
Sewer
Septic TankShared Septic
SqFt Above
1970
SqFt Total
1970
Utilities
Cable AvailableElectricity ConnectedUnderground Utilities
Zoning
Res
Interior Features
Appliances
DishwasherDisposalElectric RangeMicrowavePlumbed For Ice Maker
Cooling
Central Air
Flooring
CarpetLaminateSustainableTileWood
Heating
ElectricHeat PumpZoned
Laundry Features
Electric Dryer HookupLaundry ClosetMain LevelWasher Hookup
Save
Ask
Tour
Hide
Exterior Features
Construction Details
Stone Veneer
Patio And Porch
CoveredFront PorchPatio
Community Features
Association Dues
132
HOA Fee Frequency
Monthly
Roads
ConcretePaved
Schools
School District
Unknown
Elementary School
North Buncombe/N. Windy Ridge
Middle School
North Buncombe
High School
North Buncombe
Listing courtesy of Patton Allen Real Estate LLC [email protected]
Listings courtesy of Canopy MLS as distributed by MLS GRID. Based on information submitted to the MLS GRID as of {last_incremented_at}. All data is obtained from various sources and may not have been verified by broker or MLS GRID. Supplied Open House Information is subject to change without notice. All information should be independently reviewed and verified for accuracy. Properties may or may not be listed by the office/agent presenting the information. Some IDX listings have been excluded from this website. Properties displayed may be listed or sold by various participants in the MLS. ©2026 Canopy MLS.
The Digital Millennium Copyright Act of 1998, 17 U.S.C. § 512 (the “DMCA”) provides recourse for copyright owners who believe that material appearing on the Internet infringes their rights under U.S. copyright law. If you believe in good faith that any content or material made available in connection with our website or services infringes your copyright, you (or your agent) may send us a notice requesting that the content or material be removed, or access to it blocked. Notices must be sent in writing by email to [email protected]. “The DMCA requires that your notice of alleged copyright infringement include the following information: (1) description of the copyrighted work that is the subject of claimed infringement; (2) description of the alleged infringing content and information sufficient to permit us to locate the content; (3) contact information for you, including your address, telephone number and email address; (4) a statement by you that you have a good faith belief that the content in the manner complained of is not authorized by the copyright owner, or its agent, or by the operation of any law; (5) a statement by you, signed under penalty of perjury, that the information in the notification is accurate and that you have the authority to enforce the copyrights that are claimed to be infringed; and (6) a physical or electronic signature of the copyright owner or a person authorized to act on the copyright owner’s behalf. Failure to include all of the above information may result in the delay of the processing of your complaint.
Last checked - 2026-01-02 08:35 PM UTC
Listings courtesy of Canopy MLS as distributed by MLS GRID. Based on information submitted to the MLS GRID as of {last_incremented_at}. All data is obtained from various sources and may not have been verified by broker or MLS GRID. Supplied Open House Information is subject to change without notice. All information should be independently reviewed and verified for accuracy. Properties may or may not be listed by the office/agent presenting the information. Some IDX listings have been excluded from this website. Properties displayed may be listed or sold by various participants in the MLS. ©2026 Canopy MLS.
The Digital Millennium Copyright Act of 1998, 17 U.S.C. § 512 (the “DMCA”) provides recourse for copyright owners who believe that material appearing on the Internet infringes their rights under U.S. copyright law. If you believe in good faith that any content or material made available in connection with our website or services infringes your copyright, you (or your agent) may send us a notice requesting that the content or material be removed, or access to it blocked. Notices must be sent in writing by email to [email protected]. “The DMCA requires that your notice of alleged copyright infringement include the following information: (1) description of the copyrighted work that is the subject of claimed infringement; (2) description of the alleged infringing content and information sufficient to permit us to locate the content; (3) contact information for you, including your address, telephone number and email address; (4) a statement by you that you have a good faith belief that the content in the manner complained of is not authorized by the copyright owner, or its agent, or by the operation of any law; (5) a statement by you, signed under penalty of perjury, that the information in the notification is accurate and that you have the authority to enforce the copyrights that are claimed to be infringed; and (6) a physical or electronic signature of the copyright owner or a person authorized to act on the copyright owner’s behalf. Failure to include all of the above information may result in the delay of the processing of your complaint.
Last checked - 2026-01-02 08:35 PM UTC
Neighborhood & Commute
Source: Walkscore
Disclosure: Community information and market data powered by Constellation Data Labs. Information is deemed reliable but not guaranteed.
Save
Ask
Tour
Hide
Did you know? You can invite friends and family to your search. They can join your search, rate and discuss listings with you.